Trung tâm Dịch vụ đấu giá tài sản thành phố Hải Phòng ( thuộc Sở Tư Pháp TP Hải Phòng) tổ chức đấu giá quyền sử dụng đất gồm 25 lô đất trên địa bàn xã Kiến Thụy, TP Hải Phòng
1. Thời gian, địa điểm tham khảo, bán hồ sơ tham gia đấu giá: Từ 7 giờ 30 ngày 24/02/2026 đến 17 giờ 00 ngày 10/03/2026 tại Trung tâm Dịch vụ đấu giá tài sản thành phố Hải Phòng và Ban Quản lý dự án đầu tư xây dựng xã Kiến Thụy (trong giờ hành chính).
2. Thời gian, địa điểm tiếp nhận hồ sơ mời tham gia đấu giá: Từ 07 giờ 30 ngày 24/02/2026 đến 17 giờ 00 ngày 10/03/2026 tại Ban Quản lý dự án đầu tư xây dựng xã Kiến Thụy (trong giờ hành chính).
3. Thời gian xem tài sản: Từ ngày 25/02/2026 đến ngày 27/02/2026 tại thực địa khu đất(trong giờ hành chính).
4. Thời gian nộp tiền đặt trước: Từ ngày 24/02/2026 đến 17 giờ 00, ngày 10/03/2026 ( trong giờ hành chính). Nộp khoản tiền đặt trước vào tài khoản số 2104211000335 của Trung tâm Dịch vụ đấu giá tài sản thành phố Hải Phòng tại Ngân hàng Nông Nghiệp và Phát triển nông thôn chi nhánh Kiến An. Hoặc có thể nộp tại các Phòng Giao dịch khác của Ngân hàng Nông Nghiệp và Phát triển nông thôn trên địa bàn thành phố Hải Phòng vào số tài khoản trên;
5. Thời gian nộp phiếu trả giá ( sau khi nộp tiền đặt trước): Từ ngày 24/02/2026 đến 17 giờ 00, ngày 10/03/2026 ( trong giờ hành chính) tại Ban Quản lý dự án đầu tư xây dựng xã Kiến Thụy;
6. Thời gian, địa điểm tổ chức cuộc đấu giá: Từ 08 giờ 30 ngày 13/03/2026 tại Trung tâm dịch vụ sự nghiệp công xã Kiến Thụy, thành phố Hải Phòng; Địa chỉ: Thôn Thọ Xuân, xã Kiến Thụy, thành phố Hải Phòng;
Xem Quy chế đấu giá 25 lô đất trên địa bàn xã Kiến Thụy, TP Hải Phòng Tại Đây

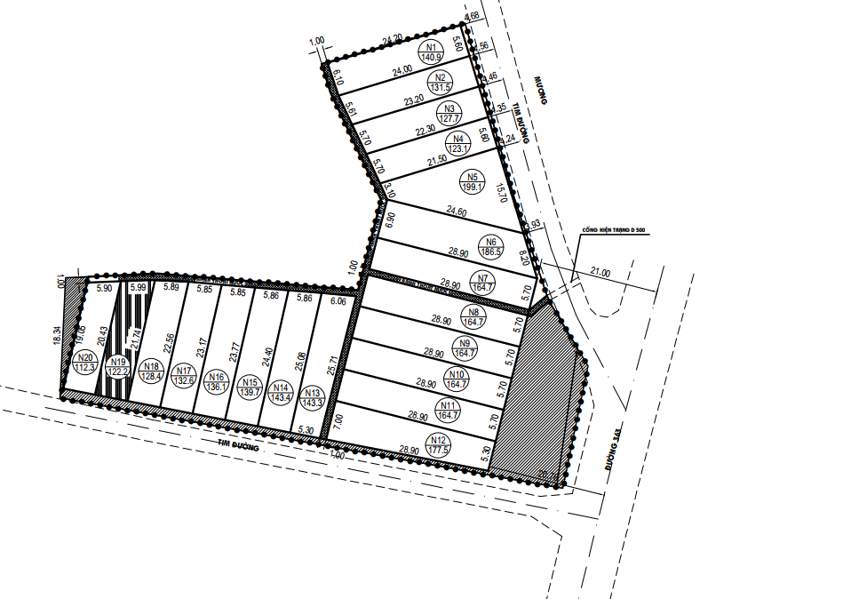
Link map đấu giá 25 lô đất trên địa bàn xã Kiến Thụy, TP Hải Phòng
Để biết thêm thông tin chi tiết về các khu đấu giá tại Hải Phòng như: giá khởi điểm, giá trúng đấu giá, thời gian, vị trí khu đấu giá... và nhiều thông tin nghiên cứu, tổng hợp và phân tích, báo cáo chuyên sâu tại thị trường bất động sản Hải Phòng vui lòng liên hệ Nhà đất An Phú - Đơn vị R&D bất động sản Hải Phòng.